Panoramische Zwei-Zimmer-Wohnung im obersten Stockwerk nahe dem Strand in Sarafovo – keine Wartungsgebühr

 Сарафово, Skarabey Puzzle

92 032 €

74м21243 €/м2

2 Räume, 1 Schlafzimmer 1 Balkon, 1 Badezimmer
gebaut 2027
unmöbliert
5 von 5
400 m
Immobilieninformation
  • ID:37780
  • Stadt: Burgas
  • Complex:Skarabey Puzzle
  • Gebaut:2027
  • Ausstattung:unmöbliert
  • Entfernung zum Strand:400 m
  • Blick:Stadt
  • Nutzung:ganzjährig
  • Etage:5 von 5
  • Bauweise:massiv
  • Heizung:Strom
  • Sicherheit:Nein
  • Aufzug:Ja
Information


Wir präsentieren eine Zwei-Zimmer-Wohnung in einem neu entstehenden Wohngebäude in einer der ruhigsten und begehrtesten Gegenden von Burgas – Sarafovo. Die Lage verbindet Ruhe und Gemütlichkeit mit ausgezeichneter Anbindung – nur wenige Gehminuten vom Strand entfernt, mit bequemem Zugang zum Flughafen und ins Stadtzentrum. Das Viertel bietet eine gut ausgebaute Infrastruktur und alle Annehmlichkeiten des täglichen Lebens in unmittelbarer Nähe.

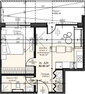
Die Immobilie hat eine Gesamtfläche von 73,63 m² und befindet sich im 5. (obersten) Stock, mit Westausrichtung – gemütliches Nachmittagslicht und wunderschöne Sonnenuntergänge. Die funktionale Aufteilung umfasst ein helles Wohnzimmer mit Küchenbereich, ein separates Schlafzimmer, ein Badezimmer mit WC sowie einen praktischen Balkon. Hohe Decken und große Fenster schaffen ein Gefühl von Raum und Komfort, während das oberste Stockwerk zusätzliche Privatsphäre garantiert. Das Gebäude verfügt über einen Aufzug.

Die Wohnung wird im BDS-Standard übergeben (verputzte Wände und Estrich), sodass Sie die Möglichkeit haben, die Innenausstattung nach Ihrem eigenen Stil zu gestalten. Das Projekt wird mit modernen Technologien und hochwertigen Materialien umgesetzt, mit Fokus auf Energieeffizienz und langfristigem Investitionswert. Keine Wartungsgebühr – ein seltenes Plus in dieser Gegend. Das Gebäude ist auf 5 Stockwerke geplant, mit funktional verteilten Studios sowie Ein-, Zwei- und Drei-Zimmer-Wohnungen. Der Komplex bietet zwei separate Eingänge mit kontrolliertem Zugang, Aufzüge, Außenstellplätze und Tiefgaragen. Es besteht die Möglichkeit, eine Garage und/oder einen Stellplatz zu erwerben.

Die Lage ist ideal sowohl für das ganzjährige Wohnen als auch für Feriennutzung oder Vermietung – die Nähe zum Meer, die schnelle Anbindung an die wichtigsten Punkte der Stadt und eine gepflegte Umgebung.

  • Baubeginn: Mai 2025
  • Fertigstellung (Act 16): Juni 2027

Kontaktieren Sie uns für weitere Informationen, Grundrisse und eine Beratung vor Ort. Dies ist eine großartige Gelegenheit, ein Zuhause am Meer in einer der prestigeträchtigsten Gegenden von Burgas zu sichern – mit der Ruhe, die Sie suchen, und dem Potenzial, das Sie verdienen.

siehe auf der Karte