Panorama-Dreizimmerwohnung mit großer Terrasse nahe am Meer in Pomorie – exzellente Investition und komfortables Zuhause

 Pomorie, Tuthon

129 795 €

144м2901 €/м2

3 Räume, 2 Schlafzimmer 1 Balkon, 1 Badezimmer
gebaut 2028
unmöbliert
5 von 5
200 m
Immobilieninformation
  • ID:37772
  • Stadt: Pomorie
  • Complex:Tuthon
  • Gebaut:2028
  • Ausstattung:unmöbliert
  • Entfernung zum Strand:200 m
  • Blick:Stadt
  • Nutzung:ganzjährig
  • Etage:5 von 5
  • Bauweise:massiv
  • Heizung:Strom
  • Sicherheit:Nein
  • Aufzug:Ja
Information

Wir präsentieren eine geräumige Dreizimmerwohnung in einem modernen Neubau, nur wenige Gehminuten vom Meer und vom Zentrum von Pomorie, Region Burgas, entfernt. Die Immobilie ist sowohl als privates Zuhause als auch als Investition mit hohem Vermietungspotenzial – saisonal und ganzjährig – ideal.

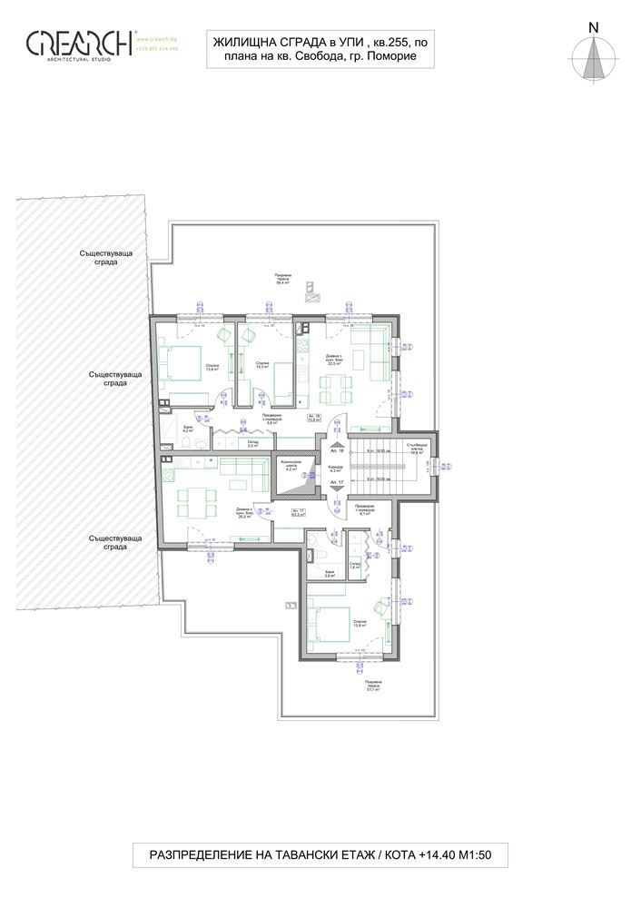
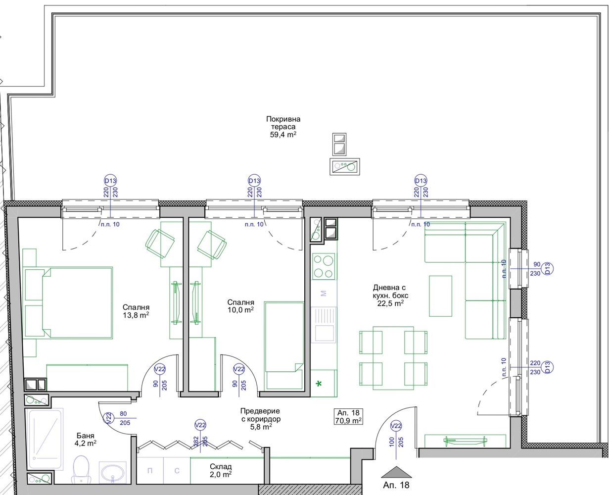
Die Wohnung hat eine Gesamtfläche von 144,22 m² und befindet sich im fünften Wohnstock eines Gebäudes mit Aufzug, mit Nordost-Ausrichtung. Die große Panoramaterrasse von 66,47 m² erweitert den Wohnraum und wird zur natürlichen Verlängerung des Wohnbereichs – ideal für Entspannung, Grillabende oder städtische Begrünung. Die funktionale Aufteilung umfasst einen Eingangsbereich/Flur, ein geräumiges Wohnzimmer mit Küchenbereich und Zugang zur Terrasse, zwei separate Schlafzimmer, ein Bad mit WC und einen internen Abstellraum. Helle Räume und praktische Planung bieten täglichen Komfort, während die Terrasse Panoramablicke und Morgensonne ohne Überhitzung am Nachmittag ermöglicht.

Die Lage ist gut ausbalanciert – ruhig und geordnet, aber sehr praktisch: nur wenige Minuten von den bekannten Heilschlamm-Bädern, medizinischen Zentren, Strand, Fußballstadion, Stadtzentrum, Geschäften, Restaurants und allen notwendigen Dienstleistungen entfernt. Das Viertel ist bei Touristen und Dauerbewohnern beliebt, was eine stabile Nachfrage bei Vermietungen gewährleistet.

Bau-Status: Die Wohnung wird als Rohbau verkauft, sodass Sie das Interieur nach Ihrem Geschmack gestalten können. Baubeginn ist November 2025, voraussichtliche Fertigstellung (Abnahme/Akt 16) bis Ende 2027. Das Gebäude verfügt über eine moderne Architektur und funktionale Gemeinschaftsbereiche, der Aufzug sorgt für schnellen und bequemen Zugang zu den oberen Stockwerken. Kontaktieren Sie uns für weitere Informationen, Grundrisse und Besichtigungstermine. Diese Immobilie verbindet modernes Design, hervorragende Lage und einen fairen Preis – eine seltene Gelegenheit auf dem Pomorie-Markt.

siehe auf der Karte