Panorama-Dreizimmerwohnung in Sarafovo mit Meerblick – oberstes Stockwerk, Aufzug, keine Wartungsgebühr

 Сарафово, Skarabey Puzzle

187 959 €

198м2949 €/м2

3 Räume, 2 Schlafzimmer 1 Balkon, 2 Badezimmer
gebaut 2027
unmöbliert
5 von 5
400 m
Immobilieninformation
  • ID:37781
  • Stadt: Burgas
  • Complex:Skarabey Puzzle
  • Gebaut:2027
  • Ausstattung:unmöbliert
  • Entfernung zum Strand:400 m
  • Blick:Stadt
  • Nutzung:ganzjährig
  • Etage:5 von 5
  • Bauweise:massiv
  • Heizung:Strom
  • Sicherheit:Nein
  • Aufzug:Ja
Information


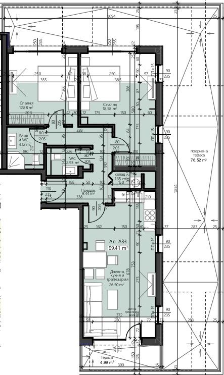
Wir präsentieren eine außergewöhnlich geräumige Dreizimmerwohnung mit einer Gesamtfläche von 197,85 m², gelegen im 5. Stock eines neuen Wohngebäudes im begehrtesten Teil von Sarafovo, Burgas. Die Wohnung ist nach Südost ausgerichtet, was den ganzen Tag über viel natürliches Licht und Wärme bietet, und die Terrasse eröffnet einen Panoramablick auf die Stadt und das Meer.

Aufteilung: Funktionaler und komfortabler Familiengrundriss – Eingangsbereich, großzügiges Wohnzimmer mit Küche und Essbereich, zwei separate Schlafzimmer, Badezimmer mit WC, separates WC sowie eine Terrasse mit beeindruckendem Ausblick. Ideal als Familienwohnung oder als Zweitwohnsitz am Meer, mit flexiblen Einrichtungsmöglichkeiten.

Zustand und Qualität: Die Wohnung wird im BDS-Standard übergeben (verputzte Wände, Estrich), sodass Sie Ihr individuelles Innenausbauprojekt realisieren können. Moderne Bauweise mit hochwertigen Materialien, Fokus auf Energieeffizienz für niedrigere Kosten und langfristigen Komfort. Das Gebäude verfügt über einen Aufzug und es fallen keine Wartungsgebühren an – ein seltenes Plus für Neubauten in Strandnähe.

Lage: Ruhige und friedliche Gegend von Sarafovo, nur wenige Gehminuten vom Strand entfernt. Die Lage verbindet Erholung mit ausgezeichneter Anbindung – schneller Zugang zum Flughafen Burgas, Stadtzentrum, entwickelte Infrastruktur, Geschäfte, Restaurants und öffentliche Verkehrsmittel. Geplante Fertigstellung (Act 16) – Juni 2027.

Investitionspotenzial: Die Immobilie ist ideal für Investitionen – Kombination aus Nähe zum Meer und Flughafen, große Fläche, Panorama-Terrasse und keine Wartungsgebühr. Hohe Nachfrage sowohl für saisonale als auch langfristige Vermietung garantiert exzellente Liquidität auf dem Sarafovo-Markt. Diese Wohnung ist ein seltenes Angebot in der Gegend – geräumig, hell, mit Aussicht und einem fairen Preis pro m² in einem Neubau. Kontaktieren Sie uns für Besichtigungen und weitere Informationen. Wir unterstützen Sie in jedem Schritt – von der Auswahl und Innenraumplanung bis zum Abschluss des Kaufs.

siehe auf der Karte