Haus mit Charakter und Perspektive – Wohnung mit zwei Schlafzimmern in einem modernen Gebäude in Meden Rudnik, Zone B

 Меден рудник - зона Б

99 500 €

97м21025 €/м2

3 Räume, 2 Schlafzimmer 2 Balkone, 1 Badezimmer
gebaut 2029
unmöbliert
5 von 6
3 km
Immobilieninformation
  • ID:38872
  • Stadt: Burgas
  • Gebaut:2029
  • Ausstattung:unmöbliert
  • Entfernung zum Strand:3 km
  • Blick:Stadt
  • Nutzung:ganzjährig
  • Etage:5 von 6
  • Bauweise:massiv
  • Heizung:Strom
  • Sicherheit:Nein
  • Aufzug:Ja
Information


Im ruhigsten und bevorzugten Teil des Stadtteils Meden Rudnik, Zone B in Burgas, ist der Bau eines Wohngebäudes der neuen Generation geplant, das moderne Architektur, Funktionalität und hohe Bauqualität vereint. Die äußere Erscheinung des Gebäudes beeindruckt mit einer modernen und stilvollen Fassade, während das Innenkonzept auf die Schaffung eines gemütlichen, ruhigen und komfortablen Wohnumfelds ausgerichtet ist.

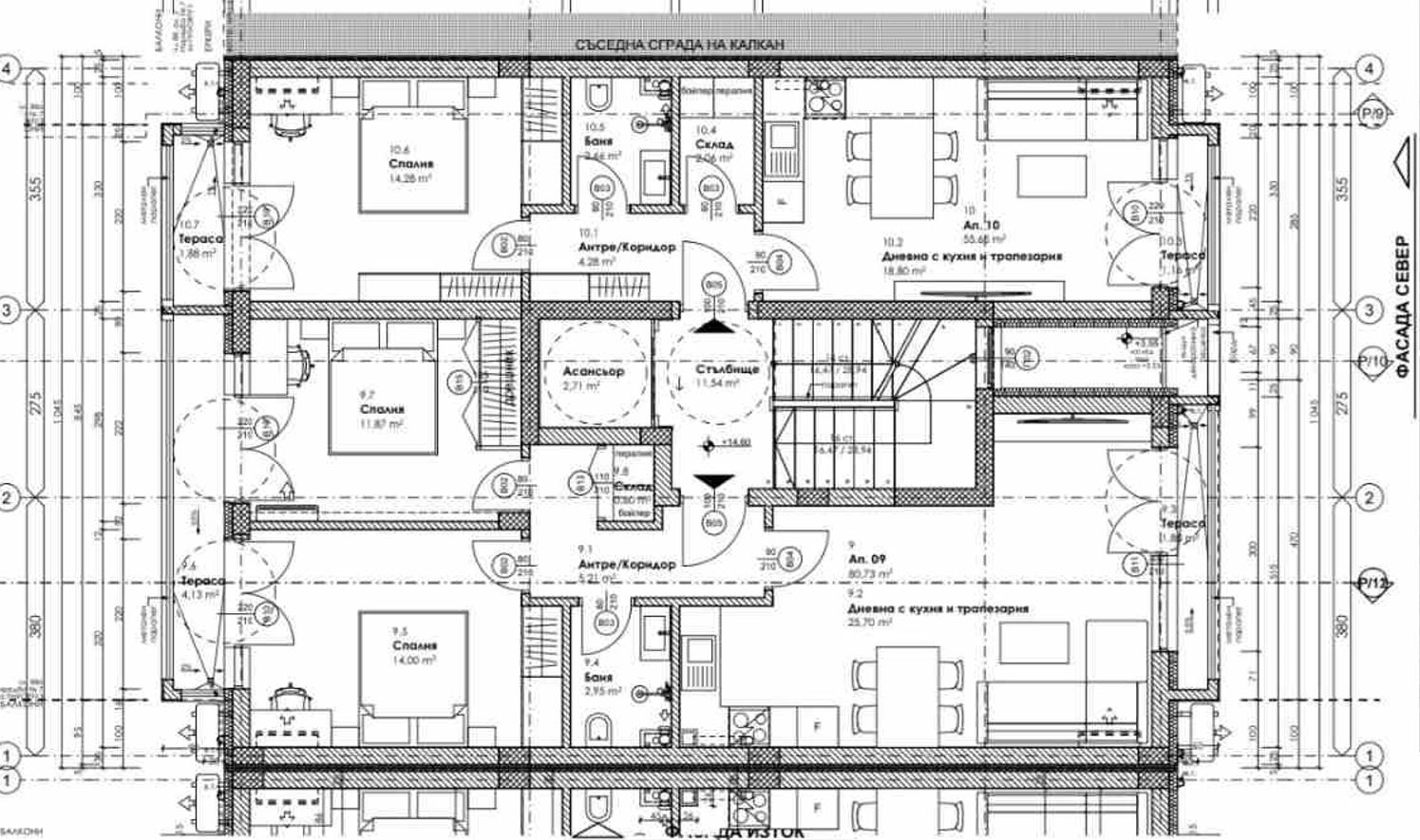
Wir präsentieren die Möglichkeit zum Kauf einer großzügigen Wohnung mit zwei Schlafzimmern und zwei Ausrichtungen, mit einer Gesamtfläche von 97 m², gelegen im fünften von sechs Stockwerken. Die Wohnung ist mit Liebe zum Detail und zur Funktionalität geplant und bietet eine ausgezeichnete Raumaufteilung: Eingangsbereich, helles Wohnzimmer mit Küchenbereich, zwei separate Schlafzimmer, Badezimmer mit Toilette, zwei Terrassen sowie einen separaten Abstellraum. Diese Planung sorgt für maximalen Komfort und Alltagstauglichkeit.

Das Gebäude ist mit einem Aufzug ausgestattet und bietet Parkmöglichkeiten durch Außen- und Tiefgaragenstellplätze sowie zwei Garagen, die zusätzlich zu Preisen von 10.000 bis 45.000 Euro erworben werden können.

Das Projekt wird nach einem hohen Baustandard realisiert, mit Fokus auf Qualität, Nachhaltigkeit und modernes Design. Die Lage ist hervorragend gewählt – in der Nähe befinden sich Geschäfte, Kindergärten und Schulen, was Komfort für das Familienleben und Ruhe im Alltag gewährleistet.

Diese Immobilie ist eine perfekte Kombination aus moderner Architektur, funktionalem Design und strategischer Lage, was sie zu einer ausgezeichneten Gelegenheit sowohl zum Wohnen als auch zur langfristigen Investition macht.




siehe auf der Karte