Drei-Zimmer-Wohnung in einem Neubauprojekt in Pomorie – Minuten vom Strand und den Heilschlamm-Bädern entfernt

 Pomorie, Tuthon

120 045 €

96м21250 €/м2

3 Räume, 2 Schlafzimmer 1 Balkon, 1 Badezimmer
gebaut 2028
unmöbliert
1 von 5
200 m
Immobilieninformation
  • ID:37768
  • Stadt: Pomorie
  • Complex:Tuthon
  • Gebaut:2028
  • Ausstattung:unmöbliert
  • Entfernung zum Strand:200 m
  • Blick:Stadt
  • Nutzung:ganzjährig
  • Etage:1 von 5
  • Bauweise:massiv
  • Heizung:
  • Sicherheit:Nein
  • Aufzug:Ja
Information

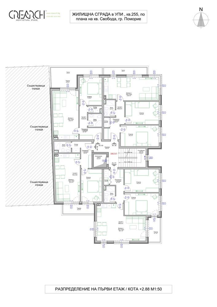
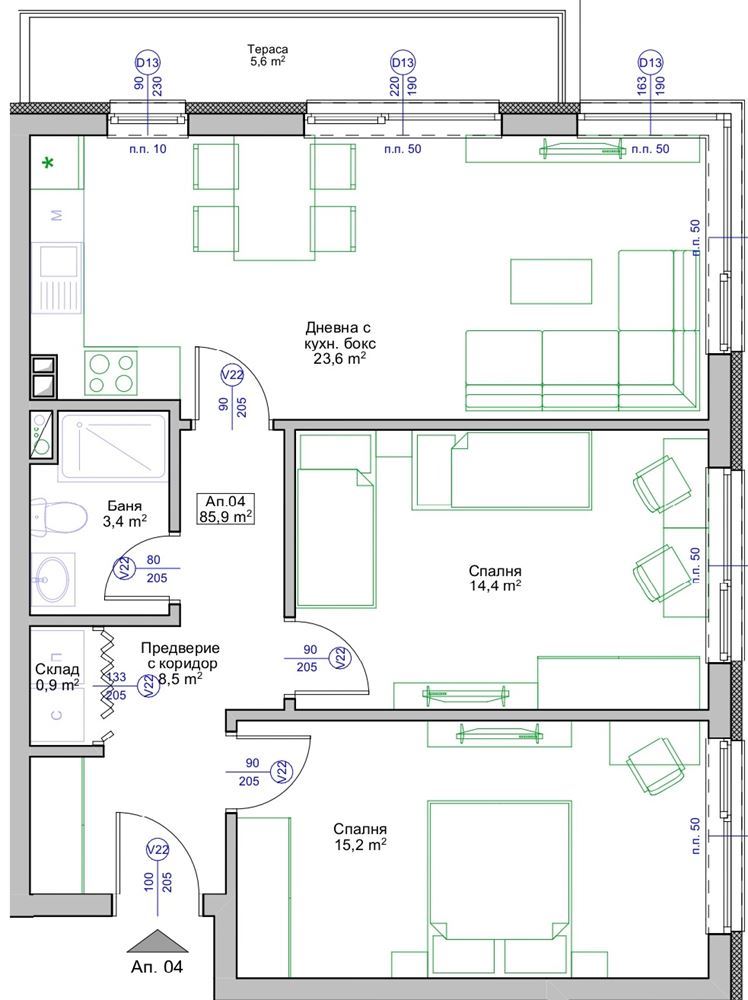
Wir präsentieren eine geräumige Drei-Zimmer-Wohnung in einem neu errichteten Wohngebäude in einem der gefragtesten touristischen Gebiete – der Stadt Pomorie. Die Immobilie hat eine Gesamtfläche von 96,04 m², befindet sich im ersten Stock und verbindet eine attraktive Lage am Meer mit den Annehmlichkeiten der Stadt – eine ausgezeichnete Wahl sowohl für ganzjähriges Wohnen als auch als Ferienhaus oder Investition. Das Gebäude liegt in einer ruhigen und friedlichen Straße „Tuthon“ in einer gut entwickelten Gegend. In Gehweite finden Sie die berühmten Heilschlamm-Bäder, medizinische Zentren, einen breiten Sandstrand, das Fußballstadion, das Stadtzentrum und zahlreiche Geschäfte. Die Lage bietet eine perfekte Balance zwischen Ruhe und schnellem Zugang zu allem, was für ein komfortables Leben und erholsamen Aufenthalt erforderlich ist.

Die Wohnung ist drei Zimmer, mit einem praktischen Grundriss: Wohnbereich mit Platz für eine Küche, zwei separate Schlafzimmer, ein Badezimmer mit Toilette, Abstellraum und ein Balkon. Der Verkauf erfolgt im Rohbauzustand, was Ihnen die Freiheit gibt, Materialien und Ausstattung nach Ihrem Stil und Budget auszuwählen. Ein Aufzug sorgt für Komfort, und die Lage im ersten Stock ist geeignet für Familien mit Kindern, ältere Menschen und Menschen mit eingeschränkter Mobilität.

Der Baubeginn ist für November 2025 geplant, mit einer Fertigstellungsdauer von 24 Monaten. So können Sie Ihren Umzug oder die zukünftige Vermietung in Ruhe planen und den Bauprozess von Anfang an verfolgen. Kontaktieren Sie uns für detaillierte Informationen, Architekturpläne und zur Vereinbarung eines Termins. Wir unterstützen Sie in jeder Phase – von der Wahl der Immobilie bis zum endgültigen Erwerb.

Keine Wartungsgebühr!

siehe auf der Karte